L’Architecte des Bâtiments de France (ABF) peut être associé à l’instruction de la demande de permis de construire ou de déclaration préalable.
Le champ de compétence de l’ABF est restreint à certaines zones géographiques délimitées : secteur sauvegardé, aux abords d’un monument historique inscrit ou classé, au sein des AVAP/ZPPAUP et des sites classés/inscrits.
Bien souvent, son regard est très largement déterminant dans la suite à donner à la demande d’autorisation de construire, aussi il convient de s’assurer du respect de règles de forme et de fond dans l’établissement du permis de construire ou de la déclaration préalable.
Qu’est-ce qu’un secteur protégé et de quoi s’agit-il ? Comment obtenir une autorisation de construire en secteur protégé ?
Voici quelques éléments d’informations pour mieux saisir les formalités à entreprendre en secteur protégé.
L’Architecte des Bâtiments de France (ABF) : l’acteur essentiel dans l’instruction de la demande d’autorisation de construire en secteur protégé
L’Architecte des Bâtiments de France (ABF) est un agent de l’Etat dont l’une des missions est de veiller à la conservation du patrimoine urbain ou naturel.
Lorsqu’il est compétent, l’ABF est chargé d’examiner les demandes d’autorisations de construire (permis de construire, déclaration préalable) afin d’assurer leur conformité au regard des dispositions réglementaires au titre du code de l’urbanisme, du code du patrimoine et du code de l’environnement.
Au-delà de l’aspect purement administratif, il doit également veiller à l’intégration architecturale du projet à son environnement proche et lointain.
A cet effet, s’il est associé à l’instruction de la demande de l’autorisation de construire, l’ABF est chargé d’émettre un avis simple ou conforme quant à la suite à donner à la demande : accord, refus, accord avec prescriptions.
L’ABF officie au sein du Service Départemental de l’Architecture et du Patrimoine (SDAP).
A savoir : l’intervention de l’ABF n’est pas systématique : tout dépend de la localisation du terrain, selon qu’il soit compris ou non dans un secteur protégé.
Cependant, rien ne semble empêcher l’administration de consulter le SDAP même lorsque le terrain est situé en dehors d’un secteur protégé.
Les champs d’intervention de l’ABF
Périmètre ABF, secteur monument historique (MH), zone SDAP … le champ d’intervention de l’ABF est souvent évoqué au travers d’expressions un peu fourre-tout, visant globalement à faire comprendre que l’ABF a un droit de regard sur les demandes d’autorisation de construire dans ces secteurs.
Le champ de compétence de l’ABF dans le cadre des autorisations de construire au titre du code de l’urbanisme est pourtant clairement identifié.
Ainsi, l’ABF intervient notamment :
- En secteur sauvegardé ;
- En ZPPAUP / AVAP (ou AMVAP) ;
- Dans le cadre des monuments historiques inscrits ou classés au titre du code du patrimoine, leurs abords et les immeubles qui y sont adossés ;
- Dans les sites classés ou inscrits au titre du code de environnement.
Secteur sauvegardé

A l’instar des POS, des PLU et de la carte communale, le PSMV peut obéir à une logique de zonage : à chaque zone géographique ses propres règles
Un secteur sauvegardé correspond à un espace géographique, généralement urbanisé, protégé en raison de son intérêt patrimonial (art. L.313-1 du code de l’urbanisme).
La protection des secteurs sauvegardés est organisée dans le cadre d’un Plan de Sauvegarde et de Mise en Valeur (PSMV), qui se substitue au Plan Local d’Urbanisme (PLU) ou au Plan d’Occupation des Sols (POS) (art. L.123-1 du code de l’urbanisme).
Le PSMV comporte notamment un règlement, qui est opposable aux demandes d’autorisation de construire (permis de construire, déclaration préalable, autorisation préalable).
Nettement plus détaillé que celui du POS ou du PLU, le règlement du PSMV peut tout à fait encadrer les détails architecturaux des façades des immeubles, même au centimètre près.
ZPPAUP/AVAP

La ZPPAUP est annexée au POS/PLU. Elle peut également obéir à une logique de zonage organisée en fonction du caractère des lieux, selon qu’ils soient urbanisés ou naturels
Zones de Protection du Patrimoine Architectural, Urbain et Paysage (ZPPAUP) ou Aires de Mise en Valeur du Patrimoine (AVAP ou AMVAP), il s’agit de servitudes d’utilité publique affectant l’utilisation des sols (art. L.642-1 du code du patrimoine).
Les ZPPAUP ou AVAP sont à ce titre opposables aux autorisations de construire (permis de construire ou déclaration préalable / Question orale sans débat n° 0215S de M. Yves Krattinger publiée dans le JO Sénat du 17/04/2008 – page 743 ).
Les ZPPAUP ont vocation à être progressivement remplacées par les AVAP (art. L.642-8 du code du patrimoine).
Le dossier de ZPPAUP ou d’AVAP contient notamment des documents graphiques permettant de localiser les terrains, ainsi qu’un document de prescriptions et de recommandations, qui fixent la portée des règles de droit des sols. Le dossier ZPPAUP/AVAP est annexé au Plan Local d’Urbanisme ou au Plan d’Occupation des Sols s’il existe.
Le contrôle du respect des prescriptions et des recommandations relève de la compétence de l’ABF, qui est alors chargé d’émettre un avis sur l’autorisation de construire.
Les ZPPAUP/AVAP ont pour objectif de favoriser la mise en valeur du patrimoine bâti et des espaces naturels dans le respect du développement durable. (L. 642-1 du code du patrimoine). Ainsi, ils peuvent aussi bien être appliqués en raison de la présence d’un monument ayant un intérêt patrimonial (monument historique), ou en vue de préserver un espace naturel qui ne comprend pas de bâtiment historique.
Lorsqu’elle existe, la ZPPAUP/AVAP se substitue à la « règle des 500 mètres« , évoquée dans le paragraphe suivant (art. L.642-5 du code du patrimoine).
Les monuments historiques inscrits ou classés, leurs abords et les immeubles qui y sont adossés
La loi du 30 mars 1887, remplacée par la loi du 31 décembre 1913, intégrée au code du patrimoine (ordonnance n°2004-178 du 20 février 2004) dispose que les immeubles dont la conservation présente un intérêt historique peuvent être inscrits ou classés en vue d’assurer leur protection.
Le classement ou l’inscription d’un monument historique a pour effet d’imposer une demande d’autorisation préalable (art. L.621-31 du code du patrimoine) :
- Immeuble classé : lorsque des travaux sont exécutés sur un bâtiment adossé à un monument historique classé ;
- Immeuble classé ou inscrit : lorsque les travaux sont exécutés sur un bâtiment situé dans le champ de visibilité d’un monument historique classé ou inscrit.
La demande d’autorisation de construire est alors examinée par l’Architecte des Bâtiments de France.
Un immeuble est considéré comme adossé à un bâtiment classé dès lors qu’il est en contact avec celui-ci (art. L.621-30 du code du patrimoine).
Un immeuble est considéré comme étant situé dans le champ de visibilité d’un immeuble classé ou inscrit dès lors (art. L621-30 du code du patrimoine) :
- Qu’il est visible depuis le bâtiment classé ou inscrit ;
- Qu’il est visible en même temps que le bâtiment classé ou inscrit ;
- Tout en étant situé dans un périmètre de 500 mètres.
Sites classés et inscrits

Le site du Ministère du Développement Durable permet d’accéder au fichier national des sites classés ainsi qu’aux sites Internet des DREAL, lesquels peuvent recenser les sites inscrits. Cliquez sur l’image pour y accéder.
Les sites classés et inscrits ont pour objectif d’assurer la préservation de monuments naturels ou plus généralement des sites ayant un intérêt particulier (art. L.341-1 et suivant du code de l’environnement).
Sites classés ou inscrits, l’utilisation des sols ou la modification d’un élément paysager nécessite systématiquement le dépôt d’une demande d’accord préalable.
L’ABF est consulté dans tous les cas dès lors qu’un projet est situé dans un site classé ou inscrit.
Attention : il ne faut pas confondre monument historique classé ou inscrit au sens du code du patrimoine, et site classé ou inscrit au sens du code de environnement.
Quels sont les travaux concernés par les secteurs protégés ?
Note : ce présent paragraphe traite exclusivement des autorisations préalables relevant du code de l’urbanisme : permis de construire ou déclaration préalable.
Le principe est simple : aucune dispense n’est possible dans les secteurs protégés.
Clôture, démolition, construction de moins de 5 m² … tous les types de travaux sont systématiquement susceptibles d’avoir au moins à faire l’objet d’une demande d’autorisation de construire au titre du code de l’urbanisme, à laquelle peut éventuellement s’ajouter une demande d’autorisation spéciale.
Ce principe reste le même pour les travaux sur construction existante : ravalement, modification de l’aspect extérieur, extension …
Seuls les travaux de réparation ou d’entretien ordinaire sont dispensés du dépôt d’une demande d’autorisation (art. R.421-24 du code de l’urbanisme).
Pour autant, il reste tout de même préférable d’informer la mairie ou le SDAP avant d’entreprendre quoi que ce soit, tant les notions de « travaux de réparation » ou d’ « entretien » peuvent facilement être sujettes à interprétation.
Tableau récapitulatif des démarches particulières en secteur protégé
Le tableau suivant liste les travaux ou constructions particulièrement visés par le code de l’urbanisme dans le cadre de travaux dans les secteurs pour lesquels l’ABF est consulté.
| Où ? | Quoi ? | Pourquoi ? |
| Secteurs sauvegardés, sites classés, réserves naturelles | Toutes les constructions de moins de 12 mètres de hauteur, même celles de moins de 5 m² de surface de plancher ou d’emprise au sol : DECLARATION PREALABLE | Art. R. 421-11 du code de l’urbanisme |
| Secteurs sauvegardés, sites classés et réserves naturelles | Installation de mobilier urbain ou d’oeuvres d’art, les modifications des voies ou espaces publics et les plantations qui sont effectuées sur ces voies ou espaces : DECLARATION PREALABLE | Art. R.421-25 du code de l’urbanisme |
| Secteurs sauvegardés, sites classés, réserves naturelles | Les murs, quelle que soit la hauteur : DECLARATION PREALABLE | Art. R.421-11 du code de l’urbanisme |
| Secteurs sauvegardés, ZPPAUP/AVAP, dans le champ de visibilité d’un monument historique, dans un site classé ou inscrit | Les clôtures : DECLARATION PREALABLE | Art. R.421-12 du code de l’urbanisme |
| Secteurs sauvegardés | Travaux ayant pour effet de modifier l’aménagement des abords d’un bâtiment existant : DECLARATION PREALABLE | Art. R.421-24 du code de l’urbanisme |
| Secteurs sauvegardés, sites classés, réserves naturelles | Les panneaux solaires au sol dont la puissance crête est inférieure à 3 Kw : DECLARATION PREALABLE | Art. R.421-11 du code de l’urbanisme |
| Secteurs sauvegardés | Tous ouvrages d’infrastructure terrestre, maritime ou fluviale tels que les voies, ponts, infrastructures portuaires ou aéroportuaires : DECLARATION PREALABLE | Art. R. 421-10 du code de l’urbanisme |
| Secteurs sauvegardés | Les travaux situés à l’intérieur des immeubles ou parties d’immeuble visés par le PSMV, ou sur un élément identifié comme présentant un intérêt patrimonial ou paysager par le PSMV : PERMIS DE CONSTRUIRE | Art. R.421-15 du code de l’urbanisme |
| Monuments historiques inscrits | Tous les travaux sont soumis à PERMIS DE CONSTRUIRE | Art. R.421-16 du code de l’urbanisme |
Attention : ce tableau liste les travaux qui nécessitent une demande d’accord en secteur protégé. En dehors de ces secteurs, les travaux ci-dessous peuvent être dispensés de formalités, sous réserve des délibérations locales (notamment dans le cadre de l’édification de clôtures).
Le principe général à retenir est que tous les types de travaux doivent faire l’objet d’une demande d’accord préalable
Comment obtenir un avis favorable en secteur ABF ?
Les conseils ci-dessous exposent quelques règles qui peuvent permettre au particulier néophyte de comprendre les principales attentes de l’ABF en secteur protégé.
Ces éléments ne conduisent pas immanquablement à un accord, mais peuvent permettre de déposer un dossier convenable, gage du soin apporté à la demande.
Plan des façades et des toitures, document graphique : les pièces cruciales du dossier
La mission de l’ABF diffère légèrement de celle du service instructeur.
L’un de leurs objectifs communs reste d’examiner la conformité réglementaire du projet au regard des dispositions applicables (code de l’urbanisme, code du patrimoine, code de l’environnement, POS/PLU, PSMV, ZPPAUP/AVAP).
Néanmoins, l’attention de l’ABF est tout spécialement portée à la fois sur l’architecture globale du projet et sur la manière dont celui-ci s’insère (ou non …) à son paysage.
Afin de pouvoir assurer cette mission, il convient de soigner l’ensemble des pièces graphiques du dossier, tout particulièrement le plan des façades et des toitures, ainsi que le document graphique.
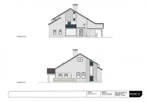
Plan des façades et des toitures

Exemple de plan des façades et des toitures. Afin de rendre l’ensemble plus visible, il est possible d’imprimer un plan par page.
Vous trouverez beaucoup plus d’informations en consultant la page consacrée au plan des façades et des toitures –>plan des façades et des toitures
Dans le cadre d’un projet s’inscrivant dans un secteur protégé, il est conseillé de transmettre un plan des façades :
1.) A l’échelle : il peut être toléré qu’un plan des façades ne soit pas à l’échelle en dehors des secteurs protégés.
Au sein de ces secteurs en revanche, l’ABF peut être amené à effectuer des mesures directement sur les plans : le respect des échelles semble donc indispensable pour ne pas amener l’ABF à commettre une erreur d’interprétation.
2.) Détaillé : le plan des façades n’est pas un plan « général », il doit au contraire être « détaillé ». Acrotères, débords de toiture, marquises, vantaux, croisillons, battants … tous les éléments d’architecture visibles depuis l’extérieur de la construction doivent apparaitre.
3.) Complet : il est préférable de représenter l’ensemble des façades, même dans le cadre de travaux réalisés sur une seule des façades du bâtiment.
En outre, dans le cadre de travaux sur une construction existante, la réalisation d’un plan illustrant l’état des façades après travaux ET avant travaux semble non-négociable afin de permettre de visualiser l’impact architectural des travaux.
Document graphique

Exemple de document graphique réalisé en images de synthèse
Le document graphique est une pièce graphique permettant de visualiser l’intégration d’une construction sur un terrain ou l’impact visuel d’un bâtiment à l’issue des travaux.
Vous trouverez plus d’informations en cliquant ici –>document graphique
Si la configuration du terrain et l’implantation du projet le permet, il est judicieux d’illustrer les constructions immédiatement voisines, afin de mieux saisir l’impact du projet.
Un document graphique réalisé correctement peut éventuellement être un « argument » en faveur du projet, dès lors que les matériaux et l’architecture du projet sont en cohérence avec le caractère du paysage.
Pour autant, il n’est pas rare que certains demandeurs se contentent du strict minimum dans la réalisation du document graphique, tant celui-ci peut parfois être délicat à réaliser.
Il reste préférable d’utiliser des logiciels spécialisés afin de réaliser ce document. Il ne s’agit pas d’une obligation formelle, loin de là, mais l’efficacité de tels logiciels peut permettre de produire un document de qualité, en plus de mettre le projet en valeur.
Ne pas hésiter à fournir des pièces supplémentaires
Le bordereau des pièces à joindre énuméré l’ensemble des pièces susceptibles d’être exigés par l’administration. En principe, aucune autre pièce que celles inscrites ne peut être réclamée.
Toutefois, il est possible de transmettre des pièces supplémentaires afin d’enrichir le dossier. Ces documents doivent être pertinents, autrement, ils risquent plutôt d’alourdir la demande.
Par exemple, il est possible de joindre des illustrations représentant le projet dans son ensemble ou ses composantes, particulièrement les menuiseries, la couverture et les éléments vitrés.
L’objectif sera alors de présenter des éléments visuels supplémentaires du projet permettant d’aiguiller l’administration dans sa décision.
Évidemment, ce genre d’initiatives peut être à double tranchant. L’ABF peut ainsi être alerté sur un élément qui n’apparaissait pas sur le plan des façades ou sur le document graphique.
Mais ces documents peuvent permettre de réduire le risque de faire l’objet d’une notification pour insuffisance, chose qui reste assez pénalisante en termes de délai au sein des secteurs protégés.
Les pièces écrites : soignez les détails
Permis de construire (PCMI 4) comme déclaration préalable (DP 11), la demande d’autorisation doit obligatoirement comporter une pièce écrite qui consiste notamment à détailler l’état initial et projeté du terrain, le projet en lui-même et la manière dont il s’intègre au terrain ou au bâtiment existant.
Vous trouverez plus d’informations sur la notice descriptive du permis de construire (PCMI 4) en cliquant ici –>notice décrivant le terrain et présentant le projet
En plus de la trame générale du PCMI 4, il semble pertinent de détailler chacun des éléments de composition des façades et des toitures : teinte, matériaux, aspect, dimensions.
Aussi, il est nécessaire de décrire la manière dont les travaux seront effectués, tout particulièrement :
• s’il est prévu de procéder à une démolition, même partielle ou en vue de reconstruire ;
• une modification de la composition du terrain : arrachage, plantation, constitution d’une terrasse, dalle, allée.
Un rendez-vous au CAUE est toujours bénéfique !

Le site Internet de la Fédération Nationale des CAUE permet de retrouver l’adresse du CAUE de chacun des départements (à gauche). Cliquez sur l’image pour y accéder.
Le Conseil d’Architecture, d’Urbanisme et de l’Environnement (CAUE) a pour mission d’informer et de guider les candidats à la construction.
Il est conseillé de consulter le CAUE avant d’entamer les démarches administratives au sein d’un secteur protégé, tout particulièrement dans le cadre de travaux importants.
Le CAUE peut ainsi permettre de corriger le projet avant même le dépôt de la demande de l’autorisation de construire.
A savoir que l’ABF, dont son avis est souvent déterminant, peut siéger de droit au CAUE.
En quoi les travaux sont-ils nécessaires ? En quoi s’intègrent-ils au paysage proche et/ou lointain ?
Loin d’être anodines, les réponses à ces questions peuvent être autant d’arguments à faire valoir.
Rien n’empêche de motiver les travaux dans les pièces écrites (PCMI 4 ou DP 11), qui peuvent par exemple être nécessaires pour des raisons de sécurité, de salubrité ou en vue d’assurer l’activité agricole.
Ce genre d’informations ne constituent pas d’astuces infaillibles permettant d’obtenir un accord systématiquement (il n’en existe pas d’ailleurs).
Mais cela peut permettre à l’ABF de saisir l’intérêt des travaux, à condition évidemment que ces arguments soient fondés.
Peut-être plus à propos au regard des missions de l’ABF, il est plus que recommandé de préciser quels sont les partis retenus pour assurer l’intégration du projet à son terrain, ou, au moins atténuer l’impact visuel des travaux.
Généralement, le respect de la continuité architecturale passe par l’utilisation de teintes, de matériaux et d’éléments de façades similaires ou cohérents avec les constructions aux alentours du terrain.
En conclusion : est-il possible d’obtenir un avis favorable en secteur protégé ?
En dépit de règles parfois très contraignantes, il est évidemment possible d’obtenir un avis favorable en secteur protégé.
Tout dépend notamment de 3 éléments essentiels :
- La nature des travaux : plus ceux-ci ont un impact durable et important, plus le projet devra être réfléchi.
- L’intérêt du terrain : le regard de l’ABF ne sera (peut-être) pas si sévère dès lors que le terrain ne présente pas lui-même un intérêt particulier, en raison par exemple de son éloignement géographique avec l’élément à protéger.
- L’absence ou non de co-visibilité : un projet, qu’il soit visible ou non, doit au moins obéir aux règles du PSMV, ou de la ZPPAUP/AVAP. Pour autant, l’absence de co-visibilité, sous réserve de la nature des travaux et du terrain, peut constituer un élément à faire-valoir dans la demande d’autorisation de construire (à voir s’il peut être reçu par l’ABF).
Plus le projet est conséquent, plus l’intérêt du terrain est important, plus le projet est visible : alors plus l’analyse de l’ABF devrait être attentive.
Ajoutons à ces éléments le dossier en lui-même : un dossier réalisé soigneusement semble être un minimum.
Au final, il reste possible de construire, mais il est vrai qu’une demande établie dans un secteur protégé nécessite un maximum d’attention de la part du demandeur.
Un rendez-vous au CAUE ou au SDAP apparaît être une étape incontournable avant d’engager quoi que ce soit.