
Agrandir sa maison : toutes les règles à respecter
Les travaux consistant à agrandir une maison doivent être précédés de la délivrance d’un permis de construire ou d’une déclaration préalable en fonction de l’importance des surfaces à construire.
Le seuil de la déclaration préalable peut être relevé à 40 m2 (au lieu de 20 m2) sous certaines conditions.
Dans la mesure où l’agrandissement d’une maison d’habitation consiste à créer une « partie nouvelle d’une construction », la réglementation thermique est alors applicable.
Selon l’importance des surfaces envisagées, il convient de respecter soit la réglementation thermique pour les bâtiments existants (« RT Ex par élément »), soit la réglementation thermique 2012. Les attestations à joindre au dépôt du permis de construire et à l’achèvement des travaux sont dites « adaptées » lorsque les travaux relèvent de la RT Ex.
De plus, l’agrandissement doit être conforme aux règles d’urbanisme, dont celles relatives à l’implantation des constructions et à leur aspect extérieur.
Par ailleurs, l’agrandissement d’une maison peut donner lieu à l’acquittement d’une taxe d’aménagement. Il peut également faire évoluer le montant des taxes locales, dont celui de la taxe d’habitation.
Quelles sont les démarches à suivre, la réglementation thermique à appliquer, les règles d’urbanisme à respecter, est-il possible d’agrandir une maison en secteur inconstructible, quelle est la fiscalité applicable …
Cet article traite des principales interrogations suscitées par des travaux d’agrandissement.
Agrandir une maison : démarches et formalités administratives
L’agrandissement d’une maison obéit aux formalités relatives aux travaux sur construction existante définies aux articles R.421-18 et suivants du code de l’urbanisme.
Ainsi, selon :
- L’importance des surfaces à construire ;
- L’importance des surfaces initiales de la maison ;
- La situation juridique du terrain …
… l’agrandissement doit être précédé de la délivrance soit :
- D’un permis de construire, le cas échéant établi par un architecte ;
- Ou d’une déclaration préalable.
Les formalités à entreprendre ont été largement modifiées par le décret du 5 décembre 2011.
En effet, sous certaines conditions, une déclaration préalable peut être requise au lieu d’un permis de construire dans la limite de 40 m² de surfaces à construire.
Comment les surfaces sont-elles évaluées ?
Au titre du code de l’urbanisme, les surfaces sont évaluées en surface de plancher et en emprise au sol.
La surface de plancher correspond à la somme des surfaces closes et couvertes de chacun des niveaux d’une construction, en y déduisant les vides, trémies, les surfaces sous une hauteur de plafond inférieure à 1,80 m ainsi que les espaces de stationnement (art. R.112-2 du code de l’urbanisme).
L’emprise au sol correspond à la projection verticale au sol d’une construction, débords et surplombs inclus, en ne tenant pas compte des éléments de modénatures (décors en façade), marquises et des simples débords de toiture non maintenus au sol par des poteaux (art. R.420-1 du code de l’urbanisme). L’emprise au sol correspond globalement à l’assise au sol de la construction, épaisseur des façades comprises.
Dès lors que la surface de plancher OU l’emprise au sol excède le seuil de la déclaration préalable (20 m² ou 40 m²), alors les travaux nécessitent un permis de construire.
Les surfaces habitables ou encore les surfaces Carrez sont sans rapport avec les démarches d’urbanisme.
Plus d’informations : calculer la surface de plancher | aide au calcul de la surface de plancher : exemple d’une maison | emprise au sol
Dans quels cas l’agrandissement d’une maison relève-t-il de la déclaration préalable ?
Schéma de synthèse
Il importe de préciser que l’éventuelle majoration de seuil de la déclaration préalable à 40 m² est uniquement applicable aux travaux sur construction existante (ex. : agrandissement, véranda, garage accolé, surélévation, création d’un étage supplémentaire).
En revanche, les projets de construction nouvelle ne sont pas concernés par cette majoration (ex. : abri de jardin, bâtiment indépendant, garage non accolé, remises).
Les changements de destination s’accompagnant d’une modification en façade ou des structures porteuses nécessitent un permis de construire.
Dans tous les cas : déclaration préalable dans la limite de 20 m² de surfaces à créer
L’agrandissement d’une maison relève de la déclaration préalable dès lors que les surfaces à créer sont inférieures ou égales à 20 m² (art. R.421-17 f) du code de l’urbanisme).
Sous certaines conditions : déclaration préalable jusque 40 m² de surfaces à créer
Dans le cadre de l’agrandissement d’une maison, le seuil de la déclaration préalable peut être relevé à 40 m² de surfaces à construire sous réserve du respect de certaines conditions (décret du 5 décembre 2011).
Quelles sont les conditions de la majoration de la déclaration préalable à 40 m² ?
1. Le terrain doit être compris dans une commune dotée d’un document d’urbanisme, comme un Plan Local d’Urbanisme (PLU) ou un Plan d’Occupation des Sols (POS)
Pour comprendre cette condition, il faut revenir au préalable sur la mise en œuvre des règles d’urbanisme.
De façon très générale, les règles d’urbanisme ont, entre autres, pour objet d’encadrer l’implantation des constructions, leur volumétrie et leur aspect extérieur.
Ces règles d’urbanisme peuvent notamment être établies par :
- Un document d’urbanisme, comme le Plan Local d’Urbanisme (PLU) ou le Plan d’Occupation des Sols (POS) ;
- Ou, en l’absence de document d’urbanisme, par le Règlement National d’Urbanisme (RNU), dont les modalités d’application peuvent être définies par une Carte communale.
Les communes dépourvues de document d’urbanisme sont d’ordinaire localisées dans des zones faiblement peuplées, notamment dans les secteurs ruraux.
Lorsque le terrain est situé dans une commune qui n’est pas couverte par un PLU ou par un POS, alors le seuil de la déclaration préalable ne peut pas être relevé à 40 m² : le seuil de la déclaration préalable demeure établi à 20 m².
2. Le terrain localisé dans une commune dotée d’un document d’urbanisme doit être situé dans une « zone urbaine »
La condition de l’existence d’un document d’urbanisme ne suffit pas à bénéficier de la majoration du seuil de la déclaration préalable : il est en outre nécessaire que le terrain soit compris dans le périmètre d’une « zone urbaine ».
En conséquence, lorsque le terrain n’est pas compris dans une telle zone, alors le projet d’agrandissement ne peut pas bénéficier de la majoration du seuil de la déclaration préalable, même lorsque la commune est dotée d’un document d’urbanisme.
Qu’est-ce qu’une « zone urbaine » ?
Le document d’urbanisme (PLU, POS) opère un « zonage » de la commune en fonction du caractère des terrains concernés :
- Zone Urbaine : il s’agit des secteurs déjà urbanisés de la commune ;
- Zone à Urbaniser : ces zones sont destinées à être ouvertes à l’urbanisation ;
- Zone Agricole : ce sont les secteurs à dominante agricole, dans lesquelles l’extension des constructions existantes est généralement « limitée » ;
- Zone Naturelle et Forestière.
Ces « zones » sont identifiées au travers du « document graphique » du PLU/POS. Formellement, le document graphique correspond à une cartographie du territoire.
3. Lorsque la surface de plancher de l’agrandissement à construire est supérieure à 20 m², alors il ne doit pas porter les surfaces de plancher totales après travaux à plus de 170 m²
Afin de conserver les conditions de recours obligatoire à un architecte telles qu’elles étaient établies avant l’application du décret du 5 décembre 2011, l’article R.421-14 b) du code de l’urbanisme dispose que :
- Les travaux entrepris sur une construction existante ayant pour effet de créer une surface de plancher ou une emprise au sol supérieure à 20 m² …
- … demeurent soumis à permis de construire (quelle que soit la localisation du terrain) …
- … lorsqu’ils portent les surfaces de plancher totales à plus de 170 m².
Par conséquent, afin de demeurer dans le champ de la déclaration préalable, l’agrandissement d’une maison ne doit pas porter la surface de plancher totale après travaux à plus de 170 m², lorsque cet agrandissement dispose d’une surface de plancher ou d’une emprise au sol supérieure à 20 m².
Le décret du 7 mai 2012 a modifié les conditions de recours à un architecte. De façon synthétique, les surfaces ne développant pas de surface de plancher, comme les espaces de stationnement ou les appentis, ne doivent pas être prises en compte dans le seuil d’intervention obligatoire à un architecte.
En savoir plus : Architecte obligatoire et emprise au sol
Dans quels cas l’agrandissement d’une maison relève-t-il du permis de construire ?
À partir de 20 m² ou 40 m² selon la localisation du terrain
Agrandissement : dans quels cas un permis de construire est obligatoire à partir de 20 m² ?
L’agrandissement d’une maison nécessite un permis de construire lorsque la surface de plancher ou l’emprise au sol à construire est supérieure à 20 m² si :
- Le terrain n’est pas situé dans une commune dotée d’un document d’urbanisme (PLU, POS) ;
- Ou si le terrain n’est pas compris dans une « zone urbaine » d’une commune dotée d’un document d’urbanisme (PLU, POS).
Quelle que soit la localisation du terrain, un permis de construire est également obligatoire lorsque :
- L’agrandissement dispose d’une surface de plancher ou d’une emprise au sol supérieure à 20 m² …
- … et qu’il a pour effet de porter la surface de plancher totale après travaux à plus de 170 m².
Dans cette situation, le permis de construire doit être réalisé par un architecte.
Agrandissement : dans quels cas un permis de construire est-il obligatoire à partir de 40 m² ?
L’agrandissement nécessite un permis de construire dès lors que la surface de plancher ou l’emprise au sol à construire est supérieure à 40 m² lorsque le terrain est situé dans une zone urbaine d’une commune dotée d’un document d’urbanisme (article R.421-14 b) du code de l’urbanisme).
Pour rappel, un permis de construire est requis à partir de 20 m² dès lors que :
- Le terrain n’est pas situé dans une zone urbaine,
- Ou lorsque la commune ne dispose pas de document d’urbanisme,
- Ou lorsque le recours à un architecte est rendu obligatoire.
Contenu de la demande d’autorisation de construire
Permis de construire
Le dossier de permis de construire comporte :
- Le formulaire CERFA de permis de construire ;
- Le formulaire CERFA de déclaration des éléments nécessaires au calcul des impositions.
Les pièces à joindre obligatoirement :
- Plan de situation (PC 1 / PCMI 1) ;
- Plan de masse (PC 2 / PCMI 2) ;
- Plan en coupe du terrain et de la construction (PC 3 / PCMI 3) : la demande doit comporter les plans en coupe du terrain avant et après les travaux lorsque l’agrandissement a pour effet de modifier le profil du terrain naturel ;
- La notice décrivant le terrain et présentant le projet (PC 4 / PCMI 4) ;
- Le plan des façades et des toitures (PC 5 / PCMI 5) : la demande doit comporter les plans des façades et des toitures à leur état futur (après l’agrandissement) et à leur état initial (avant l’agrandissement) ;
- Un document graphique (PC 6 / PCMI 6) ;
- Les photographies en environnement proche et paysage lointain (PC 7-8 / PCMI 7-8).
Des pièces complémentaires peuvent également être exigées compte tenu de la nature du projet et de la localisation du terrain.
Notamment, dans la mesure où l’agrandissement relève du permis de construire et consiste en une « partie nouvelle à usage d’habitation », le dossier doit alors comporter l’attestation de prise en compte de la réglementation thermique (PCMI 14-1 – art. R.431-16 i du code de l’urbanisme).
Ou encore, l’établissement d’une attestation certifiant la prise en compte d’une étude de sols peut également être imposé lorsque le terrain est compris dans le périmètre d’un plan de prévention des risques (PCMI 14 – art. R.431-16 e du code de l’urbanisme).
En savoir plus : Remplir le formulaire de permis de construire | Réaliser les pièces à joindre à un permis de construire
Déclaration préalable
Le dossier de déclaration préalable comporte :
- Le formulaire CERFA de déclaration préalable ;
- Le formulaire CERFA de déclaration des éléments nécessaires au calcul des impositions.
Les pièces à joindre compte tenu du projet :
- Plan de situation (DP 1) ;
- Plan de masse (DP 2) ;
- Plan en coupe du terrain et de la construction (DP 3) : ce plan est en principe facultatif lorsque l’agrandissement ne modifie pas l’altimétrie du terrain naturel – il reste en pratique régulièrement exigé ;
- Plan des façades et des toitures (DP 4) : la demande doit comporter les plans des façades et des toitures à leur état futur (après l’agrandissement) et à leur état initial (avant l’agrandissement) ;
- Représentation de l’aspect extérieur (DP 5) ;
- Photographies en environnement proche et en paysage lointain (DP 7/8).
Le dossier de déclaration préalable doit également comporter une « notice faisait apparaître les matériaux et les modalités d’exécution des travaux » (DP 11) lorsque le terrain est compris dans un « secteur protégé » : secteur sauvegardé, champ de visibilité d’un monument historique, aire de mise en valeur de l’architecture et du patrimoine.
Les attestations de prises en compte de la réglementation thermique ne sont pas à joindre à la demande de déclaration préalable (et à l’achèvement des travaux).
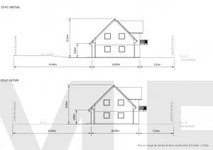
Exemple (partiel) de plan des façades et des toitures pour l’agrandissement d’une maison. Comme les travaux sont de nature à modifier l’aspect du bâti existant, il est nécessaire de réaliser un plan illustrant l’état initial des façades (cliquez pour agrandir)
Réglementation : quelles sont les règles à respecter pour agrandir une maison ?
Parmi les différentes « réglementations » ou « législations » susceptibles d’intéresser les candidats à la construction, il est possible de relever celles qui semblent les plus essentielles :
- La réglementation thermique : les textes issus de la réglementation thermique 2012 ont modifié les formalités d’urbanisme ;
- Les règles d’aspect extérieur : l’agrandissement de la maison étant de nature à modifier son aspect extérieur, il doit alors être conforme aux éventuelles règles en vigueur ;
- Les distances d’implantation : la partie nouvelle de la maison doit respecter les règles d’implantation des constructions ;
- Les règles de stationnement (commune dotée d’un document d’urbanisme) : certaines communes peuvent imposer la réalisation d’espaces de stationnement supplémentaires en raison de la création de nouvelles surfaces de plancher.
En plus de ces « réglementations », il semble intéressant d’aborder le L.111-6-2 du code de l’urbanisme : bien que cette disposition « interdit d’interdire » une autorisation de construire en raison de l’utilisation de matériaux « écologiques » (comme à l’occasion d’une extension en bois), elle ne peut pas empêcher l’administration de refuser une autorisation lorsque l’agrandissement est de nature à porter atteinte à la qualité paysagère et architecturale des lieux.
Il semble également intéressant de traiter les conditions de recours des tiers, lesquels peuvent entamer une procédure contentieuse à l’encontre de l’autorisation de construire ou en raison d’un trouble anormal de voisinage.
Agrandissement, réglementation thermique et attestations RT 2012
L’agrandissement doit être conforme à la réglementation thermique (dans tous les cas)
La réglementation thermique s’applique à tous les « bâtiments neufs ou aux parties nouvelles de bâtiments à usage d’habitation » (art. R.111-20 du code de la construction et de l’habitation).
En conséquence, quelle que soit l’importance des surfaces à créer, l’agrandissement doit être conforme aux dispositions de la réglementation thermique.
Par ailleurs, l’article R.111-20 du code de la construction et de l’habitation relatif aux caractéristiques thermiques montre que les projets relevant du permis de construire ainsi que ceux nécessitant une déclaration préalable doivent obéir aux exigences de la réglementation thermique : la déclaration préalable n’offre aucune dérogation à la réglementation thermique.
Toutefois, les exigences à respecter sont moins importantes lorsque l’agrandissement dispose d’une SHONRT inférieure à 150 m² et 30 % de la SHONRT existante.
En savoir plus sur la « Surface Hors-Œuvre Nette au sens de la Réglementation Thermique » (SHONRT) : SHON RT – définition, base de calcul et exemple illustré
Quelle réglementation thermique appliquer ?
Synthèse :
Le tableau ci-dessous précise quelle est la réglementation thermique applicable selon l’importance de l’agrandissement :
| Taille de l’agrandissement | < 150 m² | ≥ 150 m² |
| < 30% de la SHON RT des locaux existants | RT ex par élément | RT 2012 |
| ≥ 30% de la SHON RT (S RT ) des locaux existants | RT 2012 | RT 2012 |
Source : Rt-Bâtiment, « Fiche d’application : Partie nouvelle d’un bâtiment existant (extension) »
La réglementation thermique à appliquer dépend essentiellement de l’importance des surfaces à construire.
En effet, l’article 52 de l’arrêté du 26 octobre 2010 dispose que « si la surélévation ou l’addition a une SHONRT inférieure à 150 m² et à 30 % de la SHONRT des locaux existants, elle est uniquement soumise aux exigences définies à l’article R. 131-28 du code de la construction et de l’habitation ».
L’article R.131-28 du code de la construction et de l’habitation dont il est fait référence correspond à la « RT Existant par élément ».
Agrandissement dont la SHON RT est inférieure à 150 m² et à 30 % de la SHONRT existante = réglementation thermique existant élément par élément
Lorsque la SHON RT de l’agrandissement est inférieure à 150 m² et à 30 % de la SHONRT existante, alors il est soumis au respect des exigences établies par l’arrêté du 3 mai 2007 relatif aux caractéristiques thermiques des bâtiments existants.
Agrandissement dont la SHON RT est supérieure à 150 m² ou supérieure à 30 % de la SHONRT existante = réglementation thermique 2012

Dès lors que la SHON RT de l’agrandissement est supérieure à 150 m² ou à 30 % de la SHONRT existante, alors il relève de la réglementation thermique 2012, telle qu’établies par par l’arrêté du 26 octobre 2010 relatif aux caractéristiques thermiques et aux exigences de performance énergétique des bâtiments nouveaux et des parties nouvelles de bâtiments.
Compte tenu de la nature des travaux d’agrandissement, le Centre Scientifique et Technique du Bâtiment (CSTB) a apporté quelques précisions sur les modalités d’application de la RT 2012, notamment en ce qui concerne le recours obligatoire à une source d’énergie renouvelable.
Dans quels cas faut-il réaliser les attestations certifiant la prise en compte de la réglementation thermique ?
Synthèse :
Le tableau ci-dessous récapitule les situations pour lesquelles les attestations doivent être réalisées :
| Attestations RT 2012 | Attestations RT 2012 « adaptée » | |
| Agrandissement < 150 m² SHON RT et 30 % d’existant | Non | Oui |
| Agrandissement relevant du permis de construire ≥ 150 m² SHON RT et/ou 30 % d’existant | Oui | Non |
| Agrandissement relevant de la déclaration préalable | Non | Non |
Source : Rt-Bâtiment, « Fiche d’application : Partie nouvelle d’un bâtiment existant (extension) »
Agrandissement soumis à permis de construire : attestations à joindre obligatoirement
Le code de l’urbanisme dispose dans son article R.431-16 i) que la demande de permis de construire doit être accompagnée à son dépôt d’une attestation certifiant la prise en compte de la réglementation thermique.
Par ailleurs, l’article R.462-4-1 du code de l’urbanisme dispose que la Déclaration Attestant l’Achèvement et la Conformité des Travaux (DAACT), à remettre en mairie à la fin des travaux, doit également comporter une autre attestation certifiant la prise en compte de la réglementation thermique.
Ces attestations sont dites « adaptées » lorsqu’elles portent sur un agrandissement dont la SHON RT est inférieure à 150 m² et à 30 % de la SHON RT existante.
Agrandissement relevant de la déclaration préalable : les attestations ne sont pas à joindre
Le code de l’urbanisme n’impose pas de joindre les attestations de prise en compte de la réglementation thermique au dépôt de la demande et à l’achèvement des travaux dès lors que l’agrandissement relève de la déclaration préalable.
Il faut pour autant soulever que l’agrandissement doit être conforme aux exigences de la réglementation thermique.
Le principe de « non-interdiction » des matériaux « écologiques »
L’article L.111-6-2 du code de l’urbanisme dispose que :
Nonobstant toute disposition d’urbanisme contraire, le permis de construire ou d’aménager ou la décision prise sur une déclaration préalable ne peut s’opposer à l’utilisation de matériaux renouvelables ou de matériaux ou procédés de construction permettant d’éviter l’émission de gaz à effet de serre […]
La nature des matériaux renouvelables permettant d’éviter l’émission de gaz à effet de serre est précisée par l’article R.111-50 du code de l’urbanisme (mars 2014) :
1° Les matériaux d’isolation thermique des parois opaques (note : « parois opaques » = murs et planchers) des constructions et, notamment, le bois et les végétaux en façade ou en toiture ;
2° Les portes, portes-fenêtres et volets isolants définis par un arrêté du ministre chargé de l’urbanisme ;
3° Les systèmes de production d’énergie à partir de sources renouvelables, lorsqu’ils correspondent aux besoins de la consommation domestique des occupants de l’immeuble ou de la partie d’immeuble concernée. Un arrêté du ministre chargé de l’urbanisme précise les critères d’appréciation des besoins de consommation précités ;
4° Les équipements de récupération des eaux de pluie, lorsqu’ils correspondent aux besoins de la consommation domestique des occupants de l’immeuble ou de la partie d’immeuble concernée ;
5° Les pompes à chaleur ;
6° Les brise-soleils.
Il apparaît ainsi que le refus d’une autorisation de construire portant sur l’agrandissement d’une maison ne peut pas être motivé en raison de l’utilisation de matériaux d’isolation thermique en façade (ces dispositions peuvent essentiellement intéresser les extensions en bois isolées par l’extérieur).
Ces dispositions ne sont toutefois pas applicables dans :
- Les « secteurs protégés » : secteur sauvegardé, champ de visibilité d’un monument historique, aire de mise en valeur de l’architecture et du patrimoine, site inscrit, classé, en instance de classement et parcs nationaux ;
- Ainsi que dans les périmètres établis par l’administration locale, après l’avis de l’Architecte des Bâtiments de France (ABF).
Par ailleurs, ces dispositions n’empêchent pas l’administration de refuser une demande d’agrandissement dès lors que son aspect extérieur porte atteinte à la qualité du paysage naturel et/ou bâti.
En dehors des « secteurs protégés », l’administration peut toujours utilement invoquer l’article R.111-21 du code de l’urbanisme afin de motiver un refus :
Le projet peut être refusé ou n’être accepté que sous réserve de l’observation de prescriptions spéciales si les constructions, par leur situation, leur architecture, leurs dimensions ou l’aspect extérieur des bâtiments ou ouvrages à édifier ou à modifier, sont de nature à porter atteinte au caractère ou à l’intérêt des lieux avoisinants, aux sites, aux paysages naturels ou urbains ainsi qu’à la conservation des perspectives monumentales.
En clair : toutes conditions étant par ailleurs réunies, un refus ne peut pas être motivé par l’emploi de matériaux d’isolation. Il peut en revanche être motivé lorsque leur aspect est de nature à porter atteinte à la qualité des lieux avoisinants.
Règles d’aspect extérieur
Les règles d’aspect extérieur sont établies soit :
- Par un document d’urbanisme (PLU, POS) ;
- Soit, lorsque la commune n’est pas dotée d’un règlement d’urbanisme ou lorsqu’elle est pourvue d’une carte communale, par l’article R.111-21 du code de l’urbanisme (cet article est applicable aux terrains compris en dehors d’un « secteur protégé »).
Commune dotée d’un document d’urbanisme (PLU, POS)
Les règles relatives à l’aspect extérieur des constructions sont définies par le règlement du Plan Local d’Urbanisme, en principe dans son article 11.
Ces règles ne sont pas uniformes et sont plus ou moins détaillées selon les communes. En conséquence, il est impossible d’apporter des informations précises à ce sujet.
De manière générale, les PLU peuvent apporter des prescriptions particulières en ce qui concerne les coloris, l’intégration architecturale, l’aspect des ouvertures en façade ou encore la volumétrie.
Agrandissement et secteur sauvegardé :
Les règles du Plan de Sauvegarde et de Mise en Valeur (PSMV) remplacent celles du Plan Local d’Urbanisme. La demande d’autorisation de construire est soumise à l’appréciation de l’Architecte des Bâtiments de France (ABF).
Dans la mesure où les règles du PSMV sont particulièrement détaillées et compte tenu des enjeux, il est vivement conseillé de prendre contact auprès de l’ABF le plus tôt possible (dès les premiers croquis). L’ABF officie auprès du Service Territorial de l’Architecture et du Patrimoine (STAP).
Il est tout aussi conseillé de prendre contact auprès du Conseil d’Architecture, d’Urbanisme et d’Environnement (CAUE), également le plus tôt possible. Les coordonnées du CAUE le plus proche sont disponibles ici : FNCAUE.
La consultation du CAUE est ouverte (gratuitement) à tous les demandeurs, que le terrain soit ou non compris dans un secteur sauvegardé.
Commune dépourvue de document d’urbanisme (carte communale, RNU)
Sous réserve de l’existence de servitudes particulières, les « dispositions » relatives à l’aspect extérieur des bâtiments sont établies par l’article R.111-21 du code de l’urbanisme.
Afin de tenir compte de la variété des situations possibles, l’article R.111-21 du code de l’urbanisme n’apporte que des considérations d’ordre général : il s’agit pour l’essentiel de fournir au service instructeur un moyen permettant de refuser une demande lorsque l’agrandissement porte atteinte à la qualité du site ou des paysages.
Dans l’ensemble, l’agrandissement doit s’harmoniser au bâti existant et il ne doit pas être en contraste avec le caractère architectural des lieux.
Distance d’implantation
Important : dans la mesure où les règles relatives à l’implantation des bâtiments sont très largement tributaires du contexte local et de la nature du projet, seuls la mairie ou le service instructeur sont capables d’apporter des informations adaptées.
Les paragraphes suivants n’abordent que quelques généralités à prendre sous réserves.
Plus d’informations sur les règles d’implantation : Les règles d’implantations des constructions : où peut-on construire sur un terrain ?
Les règles relatives aux distances d’implantation sont établies soit :
- Par le document d’urbanisme (PLU, POS) ;
- Soit, lorsque la commune n’est pas dotée d’un règlement d’urbanisme ou lorsqu’elle est pourvue d’une carte communale, par le Règlement National d’Urbanisme, aux articles R.111-16 et suivants du code de l’urbanisme.
Commune dotée d’un document d’urbanisme (PLU, POS)
Au même titre que les règles d’aspect extérieur, les règles d’implantation sont définies par le règlement du document d’urbanisme, aux articles 6,7,8.
De façon générale, le règlement d’urbanisme apporte des dispositions particulières relatives à l’implantation de l’agrandissement par rapport :
- Aux limites séparatives : une distance minimale de recul peut être imposée entre les façades et la ligne séparative, à défaut, la construction en limite peut être autorisée.
- Aux voies et emprises publiques : une distance minimale de recul peut être imposée depuis l’alignement.
- Aux autres constructions : une distance minimale de recul peut être imposée entre l’agrandissement et la construction la plus proche édifiée sur le terrain.
La consultation du règlement d’urbanisme est nécessaire pour connaître précisément les règles applicables au terrain.
Commune dépourvue de document d’urbanisme (Carte communale, Règlement national d’Urbanisme)
Le Règlement National d’Urbanisme (RNU) apporte des dispositions particulières relatives à l’implantation des constructions par rapport :
- À la voie publique : l’agrandissement doit être implanté selon un retrait supérieur ou égal à sa hauteur au point le plus proche de l’alignement opposé (R.111-17 du code de l’urbanisme).
- À la limite parcellaire : l’agrandissement doit être implanté à la limite parcellaire ou selon un retrait au moins égal à la moitié de sa hauteur sans que ce retrait ne soit inférieur à 3 mètres (R.111-18 du code de l’urbanisme).
- Entre deux bâtiments : il peut être imposé un recul au moins égal à 3 mètres entre l’agrandissement et le bâtiment le plus proche édifié sur le terrain (R.111-16 du code de l’urbanisme).
Règles de stationnement (commune dotée d’un document d’urbanisme)
Le document d’urbanisme (PLU, POS) peut apporter des obligations particulières en matière de stationnement.
Parmi ces obligations, le règlement du PLU/POS peut imposer de prévoir des emplacements de stationnement supplémentaires dès lors que la surface de plancher totale comprise sur un terrain dépasse un certain seuil.
Très concrètement, par exemple, il peut être imposé de prévoir deux places de stationnement pour 135 m² de surfaces de plancher construites sur un terrain.
Ainsi, dans la mesure où un agrandissement a pour effet de créer de la surface de plancher, alors il peut conduire à devoir réaliser un ou plusieurs espaces de stationnement supplémentaires. A défaut, une participation pour non-réalisation d’aire de stationnement peut être prononcée (articles L.332-7-1, R.332-17 et suivants du code de l’urbanisme.
Ces obligations ne sont toutefois pas appliquées dans toutes les communes : la consultation du règlement d’urbanisme local est nécessaire afin de savoir si le terrain est concerné.
Règles de voisinage et recours des tiers
Recours des tiers contre l’autorisation de construire ( = droit public, compétence du juge administratif)
A la délivrance de l’autorisation de construire, un panneau d’affichage doit être installé dans les conditions prévues aux articles R.424-15, A.424-15 (le panneau d’affichage doit être rectangulaire et ses dimensions doivent être supérieures à 80 centimètres) et A.424-18 du code de l’urbanisme (le panneau doit être visible et doit rester en place pendant toute la durée du chantier). Le panneau d’affichage doit comporter les mentions obligatoires énumérées aux articles A.424-16 et A.424-17 du code de l’urbanisme.
Les tiers ayant un intérêt à agir peuvent exercer un recours à l’encontre de l’autorisation de construire dans un délai de 2 mois à compter de la pose sur le terrain du panneau d’affichage (article R.600-2 du code de l’urbanisme). Le recours des tiers peut par exemple être fondé sur une irrégularité de l’agrandissement au regard des règles d’urbanisme ou sur une erreur dans la procédure d’instruction.
Le recours contentieux est formé auprès du tribunal administratif territorialement compétent.
Recours des tiers en raison d’un trouble anormal de voisinage (= droit privé, compétence du juge civil)
L’autorisation de construire n’a pas pour objet de sanctionner les règles de droit privé.
De telle sorte qu’un agrandissement peut être conforme aux règles et aux servitudes d’urbanisme (auquel cas, l’autorisation de construire ne peut pas être retiré) tout en étant à la fois constitutif d’un trouble anormal de voisinage. Par exemple, l’empiétement sur un le terrain d’autrui ou une vue irrégulière vers un fonds voisin peuvent constituer des troubles de voisinage.
Il appartient alors au tiers s’estimant lésé de saisir le tribunal civil compétent.
En savoir plus sur les servitudes de droit privé (servitudes de vue, écoulement des eaux du toit, droit de passage, etc.) : Servitudes civiles et autorisations de construire
Agrandir une maison sur un « terrain non constructible »
L’expression « terrain non constructible » recouvre plusieurs situations : un terrain peut être inconstructible en raison d’une servitude d’utilité publique, de son état d’enclavement ou encore lorsque les droits à construire, comme le coefficient d’emprise au sol, ont été épuisés.
Un terrain peut également voir sa constructibilité « limitée » lorsqu’il est situé :
- Dans une zone agricole, naturelle ou forestière, lorsque la commune est dotée d’un document d’urbanisme comme un PLU (en marge : les problèmes soulevés par le « micropastillage » ne sont pas traités dans cette note) ;
- Dans un « secteur inconstructible » identifié par une carte communale ;
- En dehors des Parties Actuellement Urbanisées pour les communes ne disposant ni de carte communale ni de document d’urbanisme.
L’ « extension limitée », qui est parfois évoquée par certains administrés, peut notamment provenir :
- De dispositions particulières inscrites au règlement du PLU ou du POS ;
- Des dispositions de la loi Montagne ou de la loi Littoral.
Commune dotée d’un Plan Local d’Urbanisme (PLU) ou d’un Plan d’Occupation des Sols : agrandissement d’une maison d’habitation en zone agricole ou en zone naturelle et forestière
Les zones agricoles, naturelles et forestières ont vocation à être protégées de l’urbanisation : les constructions nouvelles à usage d’habitation n’y sont pas admises, à l’exception des équipements collectifs, d’intérêt public ou les constructions nouvelles directement liées et nécessaires à l’activité agricole.
Certains règlements d’urbanisme peuvent toutefois autoriser l’agrandissement des constructions existantes. Afin de préserver le caractère des zones concernées, le règlement d’urbanisme peut apporter des dispositions explicites visant à limiter les surfaces constructibles.
Par exemple, le règlement d’urbanisme peut autoriser en zone agricole l’agrandissement d’une maison d’habitation dans la limite de 30 % des surfaces existantes (Cour Administrative d’Appel de Nantes, 25/03/2011, 10NT00079, Inédit), ou encore, le règlement d’urbanisme peut autoriser l’agrandissement des constructions à usage d’habitation dans la limite de 250 m² de surface de plancher (Conseil d’État, 09/12/2011, 335707).
En absence de mentions explicites inscrites au règlement d’urbanisme, l’agrandissement des constructions à usage d’habitation est en principe interdit dans les zones agricoles, naturelles et forestières.
Commune ne disposant pas de document d’urbanisme : agrandissement d’une maison d’habitation en secteur inconstructible (carte communale) ou en dehors des Parties Actuellement Urbanisées de la commune
Carte communale
La carte communale délimite :
- Les secteurs constructibles ;
- Les secteurs inconstructibles.
Bien que les constructions nouvelles soient interdites dans les secteurs inconstructibles (à l’exception des équipements collectifs, d’intérêt public ou les constructions nouvelles directement liées et nécessaires à l’activité agricole), l’extension des constructions existantes demeure autorisée, toutes conditions étant par ailleurs réunies (R.124-3 du code de l’urbanisme).
Commune ne disposant ni de carte communale ni de document d’urbanisme
En absence de carte communale et de document d’urbanisme, les constructions nouvelles sont interdites en dehors des Parties Actuellement Urbanisées (PAU) de la commune, à l’exception des équipements collectifs, d’intérêt public ou les constructions nouvelles directement liées et nécessaires à l’activité agricole (art. L.111-1-2 du code de l’urbanisme).
Toutefois, l’agrandissement des constructions existantes demeure autorisé, toutes conditions étant réunies par ailleurs (Cour Administrative d’Appel de Nantes, 16/02/2010, 09NT00832, Inédit).
La création d’un bâtiment supplémentaire ne constitue pas une extension d’une construction existante (Tribunal administratif Versailles, du 21 mars 1986, mentionné aux tables du recueil Lebon). Ou encore, ne constitue pas une extension la transformation d’un abri de jardin d’une superficie de 20 m² en une maison d’habitation de 118 m² (Conseil d’Etat, du 10 juin 1992, 109891, inédit).
L’extension limitée de la loi Littoral et de la loi Montagne
Loi Littoral
Codifiée aux articles L.146-1 à L.146-9 du code de l’urbanisme, la loi Littoral a pour objet de préserver les espaces et milieux littoraux de l’urbanisation. La loi Littoral a notamment pour effet d’emporter l’inconstructibilité des terrains situés en dehors des espaces urbanisés et sur une bande littorale de cent mètres.
Toutefois, l’extension limitée de l’urbanisation des espaces proches du rivage et situées en dehors de la bande de cent mètres demeure autorisée.
L’ « extension limitée » de l’urbanisation dont il est question dans la loi Littoral ne concerne pas spécifiquement l’agrandissement des constructions existantes. L’extension limitée de l’urbanisation intéresse plutôt l’extension significative de l’urbanisation de quartiers périphériques (Cour administrative d’appel de Douai, 26/11/2009, 08DA00381, inédit).
Ainsi, peuvent être autorisés à l’intérieur des espaces proches du rivage l’agrandissement d’une maison d’habitation et la construction d’un bâtiment annexe (Cour administrative d’appel de Nantes, du 16 décembre 1998, 97NT02003).
Loi Montagne
Codifée aux articles L.145-3 à L.145-8 du code de l’urbanisme, la loi Montagne a pour objet d’assurer la protection du patrimoine montagnard et de maîtriser l’urbanisation.
L’urbanisation doit se réaliser « en continuité avec les bourgs, villages, hameaux, groupes de constructions traditionnelles ou d’habitations existants » (article L.143-3 III du code de l’urbanisme). En dehors des parties urbanisées, l’extension limitée des constructions existantes isolées des espaces urbanisées demeure autorisée.
À ce sujet, dans une réponse publiée au Journal Officiel du 16 février 1998, le législateur apporte les précisions suivantes :
[…]il est devenu possible de réaliser en zone de montagne des travaux de réfection ou d’extension limitée des constructions existantes situées en dehors des parties déjà urbanisées des communes […].
Toutefois, si la notion d’extension d’une construction implique nécessairement d’apporter des limites raisonnables à l’accroissement de surface envisagé, il ne semble pas judicieux de fixer des normes strictes en ce domaine qui relève plutôt de l’appréciation au cas par cas[…]
Fiscalité : quelles sont les taxes à payer pour des travaux d’agrandissement ?
La création de surfaces supplémentaires à l’occasion de l’agrandissement d’une maison est (très) largement susceptible de motiver l’acquittement d’une taxe d’aménagement au titre du code de l’urbanisme.
Par ailleurs, l’ajout de surface à usage d’habitation peut dans le même temps faire évoluer le montant de la taxe d’habitation à devoir.
La taxe d’aménagement et la taxe d’habitation ne doivent pas être confondues entre elles. La taxe d’aménagement est due en raison de la délivrance d’une autorisation de construire. La taxe d’habitation est une taxe locale due en raison de l’occupation d’un logement.
Les éléments pris en compte par la taxe d’aménagement sont déclarés au dépôt de l’autorisation de construire au travers du « formulaire des éléments nécessaires au calcul des impositions ».
Ce formulaire est intégré aux formulaires CERFA d’autorisation de construire.
Taxe d’urbanisme : la taxe d’aménagement
La délivrance d’une autorisation de construire constitue le fait générateur des taxes d’urbanisme, dont la taxe d’aménagement.
La base de calcul de la taxe d’aménagement est constituée par :
La surface taxable : la surface taxable correspond aux surfaces closes et couvertes de chacun des niveaux de plancher d’une construction, calculée depuis le nu intérieur des murs, en ne tenant pas compte des vides, trémies et des surfaces sous une hauteur inférieure ou égale à 1,80 m. Un espace ouvert vers l’extérieur et/ou découvert ne développe pas de surface taxable. La surface taxable ne doit pas être confondue avec la surface de plancher.
Les valeurs forfaitaires : les valeurs forfaitaires sont actualisées chaque année par arrêté.
Les taux : les taux sont fixés par le conseil municipal (ou communautaire) et par le conseil départemental.
Lorsqu’un ouvrage ne développe pas de surface taxable en raison de son architecture (comme une piscine ou un espace de stationnement ouvert vers l’extérieur), la taxe d’aménagement est alors calculée selon des valeurs forfaitaires propres aux équipements et installations. Ces valeurs forfaitaires sont énumérées à l’article L.331-13 du code de l’urbanisme.
Dans la mesure où l’agrandissement d’une maison est de nature à générer de la surface taxable, alors la taxe d’aménagement devrait être exigible.
Le montant de la taxe d’aménagement à devoir est indiqué sur l’arrêté d’accord du permis de construire ou de non-opposition à la déclaration préalable.
Plus d’informations : Taxe d’aménagement | Surface taxable
Fiscalité locale : taxe d’habitation
Important : la consultation du centre des impôts fonciers est indispensable afin de prendre connaissance des obligations déclaratives liées à la création de nouvelles surfaces affectées à l’habitation.
Compte tenu de la variété des situations envisageables, les paragraphes suivants n’abordent que quelques généralités.
L’adresse du centre des impôts territorialement compétent est disponible ici : Impots.gouv.fr
Il est possible de prendre contact par email.
L’agrandissement d’une maison devrait avoir pour effet de modifier le montant de la taxe d’habitation, dès lors que l’agrandissement entraîne une augmentation des surfaces affectées à l’habitation.
Le montant de la taxe d’habitation est calculé d’après :
- La valeur locative cadastrale, éventuellement diminuée d’abattements (la valeur locative nette) : la valeur locative est déterminée par la surface affectée à l’habitation
- Les taux d’imposition votés localement.
La surface est mesurée de « plinthes à plinthes » : au sol ou plancher entre murs ou séparations (source : notice formulaire H1).
En principe et sous réserve des pratiques locales, un formulaire H1 (ou H2) devrait être transmis en même temps que la délivrance de l’autorisation de construire ou, au plus tard, après le dépôt de la Déclaration Attestant l’Achèvement et la Conformité des Travaux (DAACT).
Ce formulaire H1 permet de déclarer les surfaces existantes et nouvellement construites à l’occasion de l’agrandissement. Il est à retourner auprès du centre des impôts sous un délai de 90 jours à compter de l’achèvement des travaux.
La surface « affectée à l’habitation » utilisée dans le cadre de la taxe d’habitation ne doit pas être confondue avec :
- La surface habitable du code de la construction et de l’habitation – qui permet, entre autres, de définir les critères « d’habitabilité » d’un logement
- La surface de plancher du code de l’urbanisme – cette surface permet d’identifier les démarches d’urbanisme
- La surface taxable, également issue du code de l’urbanisme – la surface taxable permet de calculer le montant de la taxe d’aménagement.
Par ailleurs, la surface taxable et la taxe d’aménagement n’ont aucun rapport avec la taxe d’habitation.
La taxe d’aménagement est due au titre du code de l’urbanisme, tandis que la taxe d’habitation est due au titre du code général des impôts.
Plus d’infos sur ce sujet :
Permis de construire maison : formalités, démarches, instruction de la demande et règles à…
Construire une éolienne ou poser des panneaux photovoltaïques : toutes les démarches…
Déclarer la construction d’un abri de jardin : toutes les démarches pour construire en…
Toutes les aides financières pour les travaux de rénovation énergétique : obtention, démarches,
Construire une clôture : comment remplir le formulaire de déclaration et quels plans à faire ?…



